Her kan du følge udviklingen

Virksomhedens første projekt

VillaGreens 1. projekt

Det ønsker vi at skabe

Status December 2025

I øjeblikket kigger vi på muligheden for at installere Genvex kombineret ventilation og varmepumpe til ventilation, varme og varmt vand uden gulvvarme. Med supplerende elradiatorer, der kun træder i funktion under ekstremt kolde vejrsituationer.

Vi er nu næsten overbeviste om, at væggene skal opføres med EcoCocons halmbaserede modulsystem, som giver et meget sundt indeklima, samt en særdeles lav U-værdi og er velegnet til at påføre lerpudsoverflade udvendigt.

Isolering i terrændæk på loft og i skillevægge kommer nok til at blive papiruld, da det både er en relativ billig isoleringsmetode og samtidig er særdeles bæredygtig. Vores byggeri er meget ambitiøst, så det gælder om at finde så mange økonomisk optimale løsninger som muligt for, at projektet ikke kører helt ud ad tangenten.

Det er stadig et uløst problem at finde den rigtige løsning til taget, men vi arbejder intenst med at undersøge især muligheden for at montere et metalpladetag med solceller, vi har bare det problem lige nu, at de forhåndenværende løsninger med integrerede solceller er urimeligt dyre i forhold til en løsning med ikke integrerede solceller. Lokalplanen siger, at der skal være tegltag, men vi regner med at kunne få dispensation, hvis vi installerer sort metaltag med integrerede solceller, da det er tilladt at installere solceller på tegltaget. Metaltaget med integrerede solceller vil være æstetisk meget mere indbydende end et rødt tegltag med solcellerammer monteret oven på.

Status november 2025

Vi må nu kostatere, at Lindab er holdt op med at producere deres solcelletag Solarroof 2.0, så nu skal der findes en ny producent af metaltag med integrerede solceller. Der findes heldigvis flere producenter bl. a. Roofit, Solar Stone m. fl.

Vi går i gang med at afsøge markedet og håber inden længe at finde det bedste produkt til prisen.

Status oktober 2025

Der ønskes etableret et tofamiliehus på ca. 2 x 120 m2

Dobbelthuset etableres i 1 eller 2 planer (hvad der konkret viser sig som det mest optimale i forhold til økonomi og bæredygtighed) med sydvendt facade og saddeltag i den mest optimale vinkel (25° til 40°) i forhold til udnyttelse af eventuel 1. sal, samt optimal indfangning af solenergi ved samtidig etablering af størst muligt solcelleanlæg på taget.

Funderingen skal være baseret på skruefundament således, at huset er hævet over terræn, hvorved undgås fugt- og radonproblemer. Samtidig får vi en løsning med langt mindre CO2 forbrug og miljøbelastning end den traditionelle betonbaserede fundamentløsning. Der skal heller ikke flyttes mange m3 jord fra fundamentudgravning til andre lokaliteter. Sand og grus er i Danmark ved at være en mangelvare, så her spares der også på knappe ressourcer.

Husets bærende konstruktion skal bestå af træ/bindingsværk.

Terrændæk udføres i trækonstruktion med træfiber/hampe/papirulds-isolering.

Facader og skillevægge opføres i træ med hampe/træfiber/papiruld-isolering, som er et meget bæredygtigt diffusionåbent CO2 bindende materiale.

Loftsbeklædning skal evt. være træ-beton med god lyddæmpning og lav klima- og miljøbelastning

Hvor isolering er nødvendig, bruges Hampe/træfiber/papirulds-isolering.

Vægge og facade afsluttes med kalkmørtel/træ og males med KEIM silikatmaling, lermaling eller kalkes.

Tagbeklædning skal være ståltag med indbygget solcelleanlæg f.eks. Lindab Solarroof 2.0, da det er meget bæredygtigt og holdbart. Det er også meget let vejer ca. 8 kg pr. m2, inkl. solceller, hvilket betyder mindre materialeforbrug til opbygning af den bærende konstruktion (ydervægge og spærkonstruktion)

Der skal eventuelt være mulighed for regnvandsopsamling fra hele tagfladen til toiletskyld, vaskemaskine, havevanding bilvask m.m., således, at vi sparer mest muligt på grundvandsressourcerne og undgår problemer med kalk i toiletter og vaskemaskine, der skal hermed bruges mindre kemi i hverdagen.

3-lags energiglas i vinduer og døre fremstillet i mest muligt bæredygtigt træ, evt. intelligente ventilationsvinduer i kombination med indendørs varmepumpe til varmt vand og gulvvarme.

Ventilationsanlæg i køkken og bad justeret til boligens behov i henhold til indendørs varmepumpe.

Få små vinduer i nordvæggen og modsat mod syd.

Ladestander til el-bil med V2G til opsamling af overskydende elproduktion fra solcelleanlægget optimeret for kommende H2G. Håber det bliver muligt inden færdiggørelse af byggeriet. Ellers skal der installeres stort batteri til opsamling af overskydende el fra solcelleanlægget.

Forberedt for tilbygning af væksthus/orangeri i direkte forlængelse af huset i køkken-alrum afdeling.

Ved indretning af køkken, bryggers, badeværelser og toiletter, indre døre, skabe m.m. skal der så vidt muligt anvendes genbrug, eller hvor det ikke er muligt, de mest bæredygtige produkter, der kan fremdrives.

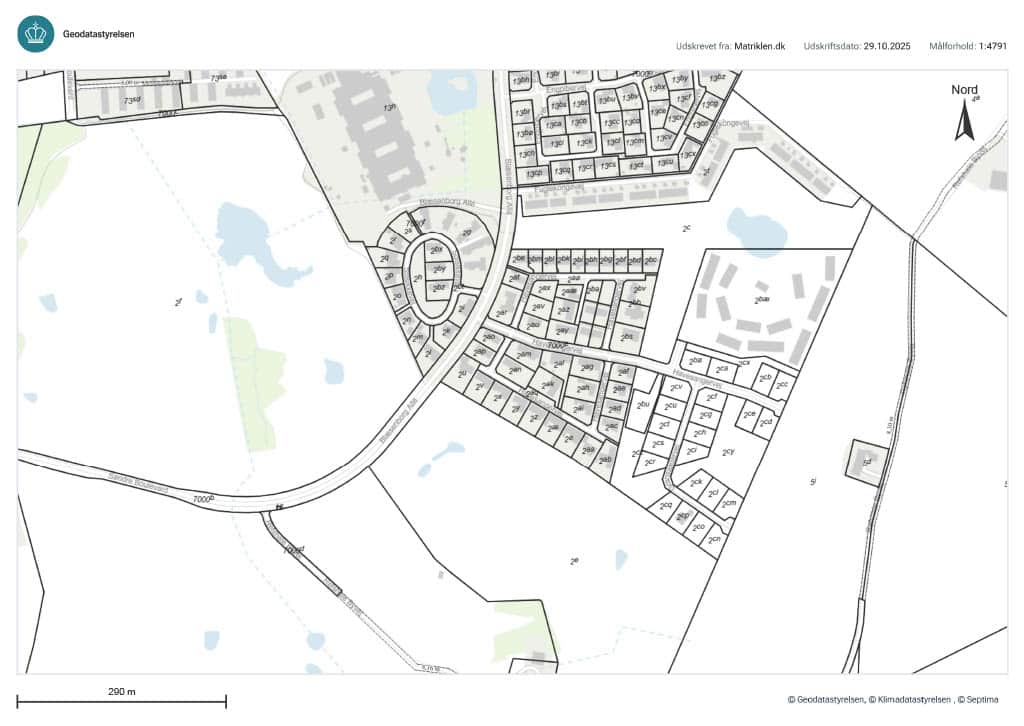
Vi har købt en dobbeltgrund i et udbygget villakvarter nær skole, golfbane og kun godt en kilometer fra bycentrum i Maribo. I området er der i forvejen en del dobbelthuse. Adressen er Havesangervej 33 A+B, 4930 Maribo.

Her er et gammelt billede af området, det er mere udbygget i dag.

Vores dobbelthus skal bygges på grunden angivet af den blå pil.

Dette er vores byggegrund inden vi går i gang
Dette er vores byggegrund inden vi går i gang.

Her et billede af udstykningerne Maribo, øverst vores dobbeltgrund 2ba, nederst en oversigt over nærområde